Einheit

Einheiten

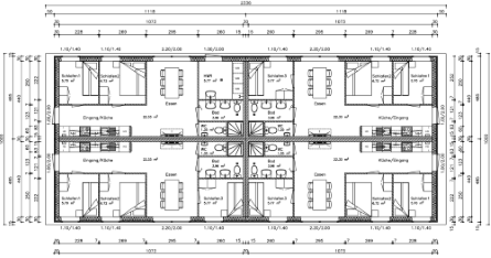
4 ausgebaute Module bilden zusammen eine Gebäudeeinheit mit je 4 Wohneinheiten sowie einem gemeinschaftlichen Hauswirtschafts-/ Wäscheraum.

Mehr »

Eingangsbereich

Raumaufteilung

Pro Wohneinheit stehen ca. 45-50m2 zur Verfügung. 2-3 Zimmer, offenes Wohnzimmer mit Küchenzeile.

Mehr »

Eingangsbereich

Bad & WC

Pro Wohneinheit gibt es ein Duschbad mit WC und einen separaten WC-Raum.

Mehr »


Der Grundriss. Mehr als "nur" geplant.

Hier können Sie sich den Grundriss vom Wohnraumangebot anschauen.


Ein virtueller Rundgang.

Verschaffen Sie sich einen Eindruck, wie das Wohnkonzept "live" aussieht.

Video-Länge ca. 6 Minuten.

Vereinbaren Sie noch heute Ihren Termin!